Вы используете устаревший браузер. Этот и другие сайты могут отображаться в нем неправильно.
Необходимо обновить браузер или попробовать использовать другой.
Необходимо обновить браузер или попробовать использовать другой.
Самодельные лодки!
- Автор темы li-nurchik
- Дата начала
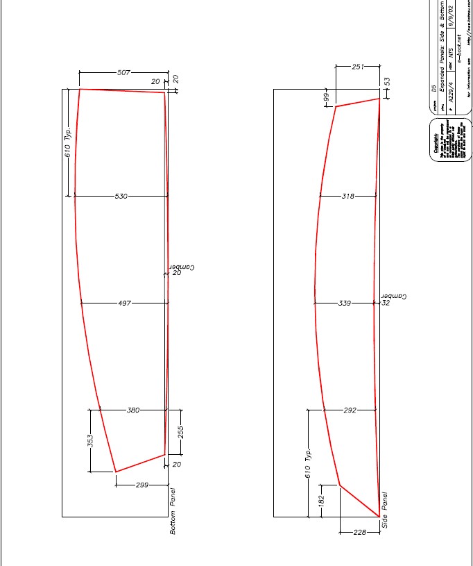
Можно. А смысл? Чертежи и так очень внятные. Два листа фанеры 2440 х1220 и вперёд. А из-за того, что угол килеватости днища несколько меняется (увеличивается) от кормового транца к носовому, из Carene придётся импортировать во FreeShip для внесения корректив. И размеры, естесственно, не будут идеально совпадать с оригиналом .... В общем, методом подбора, зарабатывая геморрой, концептуально, можно. Только ещё раз хочется узнать, а нафига???Павел28 сказал(а):... можно ли его загнать в "Карину", а потом распечатать на плоттере?
Павел! Может быть тебе лучше освоить программу Carene, и проектировать самому??? Если хочешь, скину инструкцию, значительно более простую в понимании, чем фирменное руководство ...Павел28 сказал(а):... очень нужна Ваша помощь ...
просто я не уверен, что смогу вычертить это...
думал на выкройке сэкономить
смотрел обучающий фильм Сэма Девлина, как он по координатам строит - вроде все понятно, а тут таких точных координат я не вижу, боюсь что шпангогуты и транцы потом не сядут..
Спасибо за инструкцию, я одну скачал более - меннее внятную, в формате doc.,
но куда подставлять параметры данной лодки так не понял, особенно где брать углы килеватости, конечно, если вспомнить школьный курс геометрии, то высчитать можно - но ооочень гемарно.. или я чего-то не понимаю
думал на выкройке сэкономить
смотрел обучающий фильм Сэма Девлина, как он по координатам строит - вроде все понятно, а тут таких точных координат я не вижу, боюсь что шпангогуты и транцы потом не сядут..
Спасибо за инструкцию, я одну скачал более - меннее внятную, в формате doc.,
но куда подставлять параметры данной лодки так не понял, особенно где брать углы килеватости, конечно, если вспомнить школьный курс геометрии, то высчитать можно - но ооочень гемарно.. или я чего-то не понимаю
Я тоже хренею ... Так что тебе надо, Паша ...??? Чтобы лодочка сама выпрыгнула из тихого места ...??? Только AutoCad в формате dwg создаст тебе выкройки ...Павел28 сказал(а):... меня осенило ...
JohnSan
Писатель-рыбак
Если ты из Карины выкройки на бумаге распечатаешь, например формата А4, на обычном принтере, о потом склеишь их - у тебя погрешностей будет больше, чем при вычерчивании.
Или думаешь сразу на фанере напечатать.. в натуральную величину?
Или думаешь сразу на фанере напечатать.. в натуральную величину?
повторюсь, меня интересовало можно ли имея вышепредставленные параметры лодки построить ее в карине, а после вывести на полттер(сразу или импортируя в др.проги).Вычислить углы килеватости днища и носовой оконечности лодки, имея только длины сторон треугольника(шпангоуты, носовой и кормовой транец) можно по теореме косинусов или в нашем случае просто вычислить тангенс угла(т.к. труегольник прямоугольный) и посмотреть по таблице Брадиса чему равен угол. Мне это не кажется карикатурным(наверно потому что я понимаю о чем говорю).еще можно использовать транспортир, но погрешность будет больше.
Все равно спасибо за помощь, вот что получилось с днищем(по-моему похоже на оригинал) - углы измерял на глаз
и без транспортира :lol:
Все равно спасибо за помощь, вот что получилось с днищем(по-моему похоже на оригинал) - углы измерял на глаз
и без транспортира :lol:
Вложения
Мдааа...красавчег!!!слов нет...
по Днепру нормально, у меня электродвижок, для одного самое то!
я одну такую соорудил по выкройкам(покупным) - только она плоскодонная.Остойчивость классная, лодка легкая, единственный нюанс когда встречная волна высокая - позвоночник в штаны ссыпается(сори за плагиат)
по Днепру нормально, у меня электродвижок, для одного самое то!
я одну такую соорудил по выкройкам(покупным) - только она плоскодонная.Остойчивость классная, лодка легкая, единственный нюанс когда встречная волна высокая - позвоночник в штаны ссыпается(сори за плагиат)
Павел, извини ради бога. Это я не сразу въехал, что же ты хочешь. Теперь понял - хочешь не слезая с дивана сразу получить материал для тупого обведения карандашиком ...но при этом сохранив главные размерения полупъяного североамериканского ковбоя ... Не в праве советовать, но если это уже не первая твоя лодка, и как подойти к Карине ты знаешь, то сделай всё с нуля, полностью сам. Вот уж тогда прокатимся ...Павел28 сказал(а):... я одну такую соорудил ...
Если бы лежа на диване...Дело в том, что все несколько сложнее..кто строил лодки тот знает
мне кажется у грамотно сделанной на компе выкройки, есть преимущество перед чертежом на фанере, ИМХО.
а по-моему вполне нормальное человеческое желание - напрягаться по-меньше, а чувствовать себя по-лучше...
и уж поверьте, у меня не было желания, Вас взбесить или разозлить
мне кажется у грамотно сделанной на компе выкройки, есть преимущество перед чертежом на фанере, ИМХО.
а по-моему вполне нормальное человеческое желание - напрягаться по-меньше, а чувствовать себя по-лучше...
и уж поверьте, у меня не было желания, Вас взбесить или разозлить
Vecchio сказал(а):У меня несколько другие размеры получились ... На твоём скриншоте не горизонтальная развёртка днища, а проекция ....
Наверно, Вы правы,Vecchio, с нуля строить - оно полезнее и интереснее..Отсюда сразу вопрос - эти скришоты из Автокада или из фришипа?
у меня почему-то фришип отказывается файлы карины импортировать..
В Карине, после получения желаемых обводов, переходим к сохранению ... Сначала жмём File, после Save, затем Lines XYZ !!! Всё, этот файл фришип прекрасно импортирует. Далее, цепляя мышкой любую точку, можно вносить коррективы ...и обратно экспортировать уже в АвтокадПавел28 сказал(а):... фришип отказывается файлы карины импортировать..
Павел! Если уж мы решились использовать только идею судна, не придерживаясь до миллиметра размеров, то углы легче всего (и уж конечно без тригонометрииПавел28 сказал(а):... где брать углы килеватости ...
Хороший результат даёт работа с пакетом офисных программ OpenOffis, в составе которого есть программа OpenOffis. draw., которая позволяет образмерить в любом количестве точек координат любой рисунок Jpeg. А то заокеванские ребята любят показать картинку кроя без размеров в рисуночном формате ... а остальное купи за американские деньги. А вот фигу вам...
Поделиться: